Futurground
About
Contact
Futurground
About
Contact
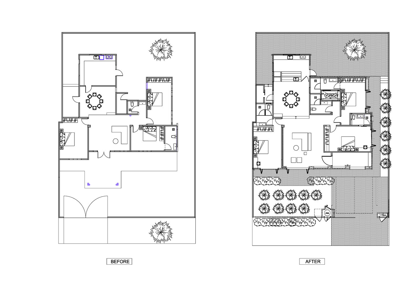
Brickwood Villa
↑
Back to Top